Inicio / En venta / Costas / Terreno - Lote en Costas
En venta Terreno - Lote

Terreno - Lote en Costas

📍 Costas, av de los lagos 100, Puertos del Lago, Escobar
En venta
U$S 150.000
💬 Consultar por WhatsApp
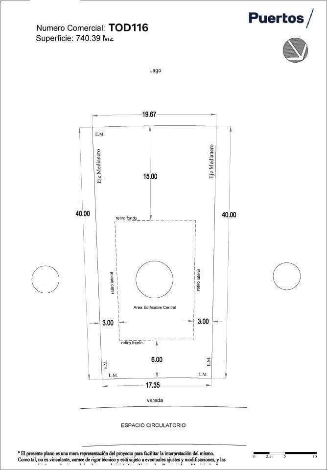
Sup. total
741 m²
🏠
Sup. cubierta
0 m²

Descripción

Excelente lote a 100 metros de la guardia, al agua.

Barrio Costas, Puertos del lago, Escobar.

El lote cuenta con 740.39 metros cuadrados, medidas aproximadas en plancheta.

Frente 17.35 metros, fondo 19.67 metros y 40 de largo.

------------------------
El Barrio Costas cuenta con terrenos al lago central, club house con pileta, plaza de juegos para los niños y canchas de tenis. Además, se encuentra estratégicamente ubicado con rápido acceso a Panamericana y R25, cercano a zona comercial, Avenida de los Lagos, colegios y club deportivo.
Puertos del Lago es un reconocido desarrollo inmobiliario que destaca por su entorno natural, amplias áreas verdes y hermosas lagunas, brindando un ambiente sereno y relajante para aquellos en busca de un lugar único para establecerse. Con un acceso directo desde la Panamericana y ubicado en medio de un entorno verde, esta ciudad ofrece un plan integral sólido y una propuesta urbanística que combina el valor artístico, paisajístico y ambiental de manera excepcional.
En Puertos del Lago encontrarás la combinación perfecta entre tranquilidad y contacto directo con la naturaleza, sin renunciar a las comodidades de la ciudad. El lugar cuenta con un sistema integral de seguridad que proporciona tranquilidad a sus residentes. Además, ofrece programas de arte y cultura, educación de calidad, unidades de cuidados intensivos disponibles las 24 horas y una proveeduría ubicada en la Plaza Central con productos para las necesidades diarias.
Explora la reserva ecológica, practica deportes acuáticos en la playa o participa en disciplinas como básquet, fútbol sobre césped, tenis, gimnasio y natación en el Club Deportivo. Puertos del Lago te brinda un estilo de vida equilibrado que combina el contacto con la naturaleza y las comodidades modernas.
Contáctanos hoy mismo para obtener más información y dar el primer paso hacia la realización de tus sueños. ¡Puertos del Lago te espera con las puertas abiertas para que construyas tu futuro!
"Las medidas, superficies y descripciones son al sólo efecto orientativo. No poseen valor contractual"
La publicación de este inmueble es a solo título informativo, pues la venta de la propiedad está supeditada a que el propietario cumplimente el trámite ante la AFIP para la obtención del Numero de COTI correspondiente.

Martin Todres Propiedades Mat. CMZC 620
Cód. del anunciante: 30622909
Cód. Zonaprop: TOD116
Número de matrícula: 620
Publicado en Zonaprop por Martin Todres Propiedades

Características adicionales

Adicionales Barrio Cerrado
Codigo contenedor MTO0022
Custom id 52953880
Barrio Cerrado

Ubicación

Ver en mapa completo →

Galería completa

Terreno - Lote en Costas — foto 1
Terreno - Lote en Costas — foto 2
Terreno - Lote en Costas — foto 3
Terreno - Lote en Costas — foto 4
Terreno - Lote en Costas — foto 5
Terreno - Lote en Costas — foto 6
Terreno - Lote en Costas — foto 7
Terreno - Lote en Costas — foto 8
Terreno - Lote en Costas — foto 9
Terreno - Lote en Costas — foto 10
Terreno - Lote en Costas — foto 11
Terreno - Lote en Costas — foto 12
M
Martin
Director / Martillero Público
💬 Escribir por WhatsApp 📞 Llamar

Consultar

Te respondemos en menos de 2hs

Sin compromiso · 100% gratuito

Compartir esta propiedad
💬 f