Inicio / En venta / Nativas / Casa en Venta en Nativas, Puertos, Esc…
En venta Casa

Casa en Venta en Nativas, Puertos, Escobar

📍 Nativas, av de los lagos 100, Puertos del Lago, Escobar
En venta
U$S 285.000
💬 Consultar por WhatsApp
Sup. total
160 m²
🏠
Sup. cubierta
140 m²
🛏
Dormitorios
3
🚿
Baños
3
🚗
Cocheras
4
🏡
Ambientes
5

Descripción

Casa en venta en Puertos – Nativas | 1 planta, pileta, lote 600 m² | Financiación y toma lote

?? Casa en venta en Puertos del Lago – Barrio Nativas – 1 planta con pileta

Excelente casa en venta en Puertos del Lago, Barrio Nativas, desarrollada íntegramente en una planta sobre lote de 600 m², una tipología muy buscada dentro de Puertos por su comodidad y funcionalidad.

Se trata de una oportunidad de compra en etapa de obra, ideal para ingresar a un valor competitivo hoy y capturar la valorización una vez finalizada.

Una propiedad pensada para lograr espacios amplios, luminosos y con gran conexión al jardín y la pileta.

? Características principales
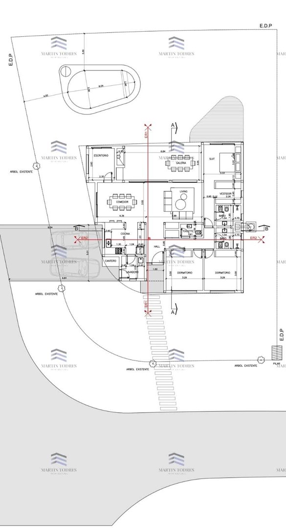
140 m² cubiertos + 20 m² semicubiertos 160 total
Living comedor integrado
Cocina integrada
3 dormitorios (1 en suite con vestidor)
2 baños completos + toilette
Escritorio / playroom
Lavadero independiente
? Exterior
Galería con parrilla
Jardín
Pileta incluida
Lote de 600 m²
Posibilidad de construir en 2do piso.

Orientación sudeste, ideal para disfrutar el exterior con una exposición solar equilibrada durante todo el año.

? Calidad constructiva
Platea de hormigón armado
Losa radiante
Carpinterías de PVC con DVH
Preinstalación de aire acondicionado
?? Oportunidad de inversión

Hoy la propiedad se encuentra a valor de obra, lo que representa una oportunidad clara:

?? Al finalizar, el valor de mercado será superior
?? Quien compra hoy captura esa diferencia de precio

?? Condiciones comerciales
Posibilidad de tomar lote en Puertos en parte de pago (según ubicación y valor)
Posibilidad de financiación parcial
?? Estado de obra
En construcción
Fecha estimada de finalización: julio / agosto
?? Por qué verla ahora

Es de las pocas casas de una planta con pileta en este rango de precio dentro de Puertos, con entrega próxima y condiciones flexibles de compra.

Ideal tanto para vivienda como para inversión.

Consultanos para más información o coordinar visita a obra.


El Barrio Nativas cuenta con acceso propio a la reserva natural, Club House con pileta, plaza de juegos para los niños, canchas de tenis. Además, se encuentra estratégicamente ubicado próximo al club náutico.
Puertos del Lago es un reconocido desarrollo inmobiliario que destaca por su entorno natural, amplias áreas verdes y hermosas lagunas, brindando un ambiente sereno y relajante para aquellos en busca de un lugar único para establecerse. Con un acceso directo desde la Panamericana y ubicado en medio de un entorno verde, esta ciudad ofrece un plan integral sólido y una propuesta urbanística que combina el valor artístico, paisajístico y ambiental de manera excepcional.
En Puertos del Lago encontrarás la combinación perfecta entre tranquilidad y contacto directo con la naturaleza, sin renunciar a las comodidades de la ciudad. El lugar cuenta con un sistema integral de seguridad que proporciona tranquilidad a sus residentes. Además, ofrece programas de arte y cultura, educación de calidad, unidades de cuidados intensivos disponibles las 24 horas y una proveeduría ubicada en la Plaza Central con productos para las necesidades diarias.
Explora la reserva ecológica, practica deportes acuáticos en la playa o participa en disciplinas como básquet, fútbol sobre césped, tenis, gimnasio y natación en el Club Deportivo. Puertos del Lago te brinda un estilo de vida equilibrado que combina el contacto con la naturaleza y las comodidades modernas.

Único barrio en el mundo con una sede del Museo Malba!
Contáctanos hoy mismo para obtener más información y dar el primer paso hacia la realización de tus sueños. ¡Puertos del Lago te espera con las puertas abiertas para que construyas tu futuro!

"Las medidas, superficies y descripciones son al sólo efecto orientativo. No poseen valor contractual"
La publicación de este inmueble es solo a título informativo, pues la venta de la propiedad está supeditada a que el propietario cumplimente le trámite ante la AFIP, para la obtención del Nro de COTI correspondiente.


Martin Todres Propiedades Mat. CMZC 620
Cód. del anunciante: 30622909
Cód. Zonaprop: TOD277
Número de matrícula: 620
Publicado en Zonaprop por Martin Todres Propiedades



#CasaEnVenta, #PuertosDelLago, #BarrioNativas, #CasaDeUnaPlanta, #CasaConPileta, #CasaEnConstruccion, #InvertirEnPuertos, #CasaModerna, #OportunidadInmobiliaria, #martintodrespropiedades

Características adicionales

Codigo MTO0249
Contenedor id 715715
Adicionales A Estrenar, Cochera, Dependencia, Calefacción, Cloacas, Agua Caliente, Agua Corriente, Barrio Cerrado
Estado inmueble Excelente
A Estrenar Cochera Dependencia Calefacción Cloacas Agua Caliente Agua Corriente Barrio Cerrado

Distribución de ambientes

Cochera
Hall
Living
Comedor
Escritorio
Toilette
Hall Intimo
Comedor Diario
Cocina
Patio
Jardín
Dormitorio
Dormitorio
Dormitorio
Dormitorio
Dormitorio
Baños
Lavadero
Dependencia
Baulera
Terraza
Calefacción
Agua Caliente
Cañería
Plantas
Playroom
Pileta
Quincho
Galería
Parrilla
Techo
Baño Servicio
Tipo Pisos
Amenities
Amenities
Amenities

Ubicación

Ver en mapa completo →

Galería completa

Casa  en Venta en Nativas, Puertos, Escobar — foto 1
Casa  en Venta en Nativas, Puertos, Escobar — foto 2
Casa  en Venta en Nativas, Puertos, Escobar — foto 3
Casa  en Venta en Nativas, Puertos, Escobar — foto 4
Casa  en Venta en Nativas, Puertos, Escobar — foto 5
Casa  en Venta en Nativas, Puertos, Escobar — foto 6
Casa  en Venta en Nativas, Puertos, Escobar — foto 7
Casa  en Venta en Nativas, Puertos, Escobar — foto 8
Casa  en Venta en Nativas, Puertos, Escobar — foto 9
Casa  en Venta en Nativas, Puertos, Escobar — foto 10
Casa  en Venta en Nativas, Puertos, Escobar — foto 11
Casa  en Venta en Nativas, Puertos, Escobar — foto 12
Casa  en Venta en Nativas, Puertos, Escobar — foto 13
Casa  en Venta en Nativas, Puertos, Escobar — foto 14
Casa  en Venta en Nativas, Puertos, Escobar — foto 15
Casa  en Venta en Nativas, Puertos, Escobar — foto 16
Casa  en Venta en Nativas, Puertos, Escobar — foto 17
Casa  en Venta en Nativas, Puertos, Escobar — foto 18
Casa  en Venta en Nativas, Puertos, Escobar — foto 19
Casa  en Venta en Nativas, Puertos, Escobar — foto 20
Casa  en Venta en Nativas, Puertos, Escobar — foto 21
Casa  en Venta en Nativas, Puertos, Escobar — foto 22
Casa  en Venta en Nativas, Puertos, Escobar — foto 23
Casa  en Venta en Nativas, Puertos, Escobar — foto 24
Casa  en Venta en Nativas, Puertos, Escobar — foto 25
Casa  en Venta en Nativas, Puertos, Escobar — foto 26
Casa  en Venta en Nativas, Puertos, Escobar — foto 27
Casa  en Venta en Nativas, Puertos, Escobar — foto 28
Casa  en Venta en Nativas, Puertos, Escobar — foto 29
Casa  en Venta en Nativas, Puertos, Escobar — foto 30
Casa  en Venta en Nativas, Puertos, Escobar — foto 31
M
Martin
Director / Martillero Público
💬 Escribir por WhatsApp 📞 Llamar

Consultar

Te respondemos en menos de 2hs

Sin compromiso · 100% gratuito

Compartir esta propiedad
💬 f